Solarfocus Hackgutkessel ecohack zero / light
90 bis 120 kW
Johann-Gottfried-Galle-Straße 1
06773 Gräfenhainichen
Telefon: 034953-33673
Email: info@allner-haustechnik.net
90 bis 120 kW
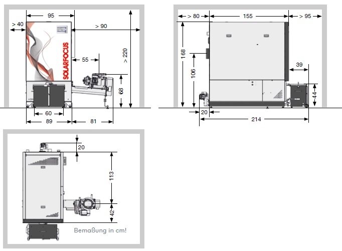
Hackgutkessel ecoHACK
Hackgutkessel mit automatischem Multi-Kipprost für sauberen und stabilen Betrieb. Herausragende Verbrennungstechnik durch Hochtemperatur-Siliziumkarbid-Brennkammer, Lambdasonde und optional mit Zero Emission Technology. Automatische Zündung über geräuschlosen Keramik-Glühstab, drehzahlgeregeltes hocheffizientes Saugzuggebläse, automatische Wärmetauscher-Reinigung und automatische Ascheaustragung in eine fahrbare Aschenbox. Abgasrezirkulation serienmässig integriert. Integrierte Rücklaufanhebung mit Mischermotor und Hocheffizienzpumpe. Zur Verfeuerung von Hackgut ISO 17225-4, Klasse A; Grosen P16S-P31S, maximal 35% Wassergehalt.
Zero Emission Technology:
Der ecoHACK zero verfügt serienmässig über einen elektrostatischen Feinstaubabscheider, der feinste Partikel aus dem Abgas entfernt. Durch eine Hochspannung von bis zu 30 kV werden die Partikel ionisiert und an den Abscheideflächen im Kessel abgeschieden.
Klare Bedienung für das gesamte Heizsystem:
7"-Touchscreen-Regelung ecomanager-touch inkl. witterungsgeführter Heizkreisregelung für 1 Heizkreis, 1 Trinkwasserladekreise und 1 Pufferladeregelung inkl. Fühler.
Optional erweiterbar auf max. 8 Heizkreise, 4 Puffers- und 4 Trinkwasserspeicher, 4 Frischwassermodule mit Zirkulation, Differenzregelung sowie bis zu 2 Dreikreis-Solarregelung sowie e3-Überschussregler Power-to-Heat.
Smart-Home-Einbindung:
Die integrierten LAN- und ModBus-TCP-Schnittstellen ermöglichen eine einfache Einbindung in gängige Smart-Home-Systeme. Über einen Konverter kann das System zusätzlich in KNX-Steuerungen integriert werden. Die wichtigsten Betriebsdaten sind über die mySOLARFOCUS-App jederzeit abrufbar – optional auch mit Vollzugriff über SOLARFOCUS-Connect.


(Verbundlabel A+++ bis G)
|
